首页 家居

70㎡三房,接近50平的大花园,这才是满足我所有想法的家,超赞

在国内,不管是一线城市、还是三线城市的朋友们,买房时都不会考虑顶层和一层的住宅,尤其一层最不受人待见,不仅房价相比其他楼层高一倍,各种问题也时常会有,例如噪音大,蚊虫多,墙面潮湿脱皮严重,假如高层卫生间发生堵漏现象,一层也肯定遭无妄之灾。

但今天给大家分享的装修案例,正是一层带花园的房子,女主坚持买的理由就是为了方便老人活动,离大自然更近,空气也好。装修后整合出一间老人房,容纳六个人的餐桌使用,同时也舍弃传统客厅布局方式,打造成一个更适合孩子学习成长的空间。

70㎡三房,接近50平的大花园,这才是满足我所有想法的家,超赞

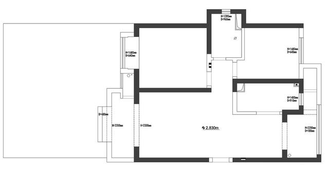
原始户型图

这是一套使用面积70平两房,是很常见的“田”字形布局,开门直面对厕所,通常以厕所为中心线,两边均分,朝南是客厅和主卧,朝北是餐厅和次卧。厨房空间狭小,利用率不高,一楼采光差也是每个家的通病。

70㎡三房,接近50平的大花园,这才是满足我所有想法的家,超赞

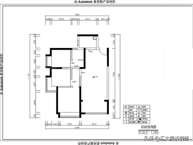
平面布局图

装修完的平面图,1,将厨房非承重墙拆掉,设计成开放式空间,利用原来隔墙区做一个简易的餐厅+岛台,让宽敞的空间更有层次感。2,将北阳台改成榻榻米的房间,解决了储物空间和老人住的需求。3,卫生间利用干湿分离设计,避免正门对厕所门的尴尬。

70㎡三房,接近50平的大花园,这才是满足我所有想法的家,超赞

厨房、餐厅、玄关、老人房

进门右侧,是厨房、餐厅、玄关、老人房一体的空间,将厨房做成开放式,餐厅则利用原墙体位置刚好摆放6人位的餐桌+餐椅组合,平时也作为厨房的岛台功能使用,让原本3平米的厨房扩大一倍不止。

70㎡三房,接近50平的大花园,这才是满足我所有想法的家,超赞


推荐阅读:山东品牌网